D1 flat design

This is a project of my apartment in Moscow, the first serious project in 3D. The first rendering was made at the end of February, and the final one at the end of June. I hired an architect to design the plan of the future apartment, and I did the visualization in realistic pictures myself.

3D rendering of apartment living room

3D rendering of apartment bedroom

3D rendering of apartment kitchen

3D rendering of apartment bathroom

3D rendering of apartment hallway

3D rendering of apartment balcony

Work on the project

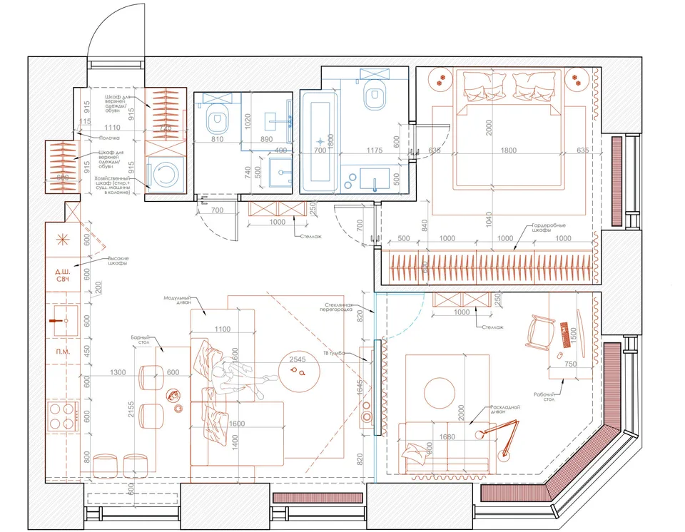
Flat plan that I got from architector

Flat plan that I got from architector

Flat base in blender

Flat base in blender

Work in progress renders.

  • Work in progress render 1
  • Work in progress render 2
  • Work in progress render 3
  • Work in progress render 4
  • Work in progress render 5